Internátní škola v Karadi
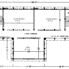
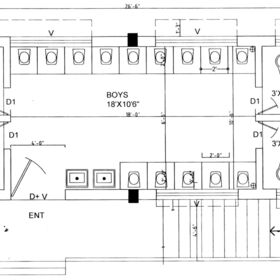
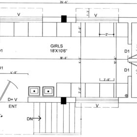
S podporou Diecézní charity Hradec Králové započala na konci roku 2024 stavba školy sv. Josefa v Karadi v oblasti Belgaum. Nejdříve byly položeny pevné základy z kamení a betonu. Následovat bude stavba přízemí a v dalších letech bude přistavěno první a druhé patro.
Celkový rozpočet je kalkulován na 49,2 mil. indických rupií, což je v přepočtu cca 12,3 mil. Kč. Původní kalkulaci bylo nutné navýšit kvůli nestabilnímu podloží. Škola by měla být vybudována za 3-5 let. Rychlost stavby bude záviset mimo jiné na dostupnosti finančních prostředků.
Cílem projektu je vybudovat základní školu v odlehlém venkovském regionu diecéze Belgaum, který se potýká s vysokou mírou negramotnosti. Díky nedalekému internátu se zde budou moci vzdělávat nejen místní, ale i děti z širšího okolí.
Diecézní katolická charita Hradec Králové na stejném místě v minulosti podpořila rozšíření internátní budovy, kde v současné době probíhá výuka, dokud nebude postavena plnohodnotná školní budova.
Stručná historie projektu
Stavební práce
2025: betonování základové desky
2024-2025: vyhloubení základů, navezení kamenů
2024: v pátek 22.11. slavnostní položení základního kamene
2018-2024: zakoupení pozemku, vyřízení povolení ke stavbě a dalších potřebných formalit
Příspěvky z Tříkrálové sbírky
2025: 1 791 423,49 Kč
2024: 1 584 288,14 Kč
2023: 1 036 930,28 Kč
Pokud můžete,
přispějte prosím.
Příspěvky na výstavbu školy můžete zasílat na konto:
Děkujeme všem dárcům a příznivcům za pomoc.
Pokud potřebujete potvrzení o daru, napište nám na e-mail: platby@hk.caritas.cz,
nebo pošlete vyplněný formulář.
Máte další dotazy? Kontaktujte nás e-mailem nebo telefonicky na čísle +420 731 402 287.

















